帮我找房
北四环展示面亚奥商圈世奥国际中心挑高4.7米各付各税
756.5

1.7万/㎡

445㎡
建筑面积
66~133个
推荐工位数
精装修
装修

办公楼盘:世奥国际中心

楼盘类型:标准写字楼

楼盘位置:朝阳区·太阳宫·芍药居北里101号

交通地铁:距离地铁5号线惠新西街北口距离出口1250米

看房时间:

加我微信

基本信息
  • 价:
    756.5万元
  • 质:
    二手写字楼
  • 价:
    1.7万/㎡
  • 积:
    445
  • 型:
    甲级写字楼
  • 层:
    高区/共32层 共层
  • 修:
    精装修
  • 使率:
    90.0%
  • 数:
    66~133个
  • 册:
    可注册
  • 盘:
    世奥国际中心
  • 割:
    可分割
  • 址:
    朝阳区·太阳宫·芍药居北里101号
  • 费:
    0.00元/㎡/天
配套设施
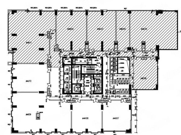
房源概况
世奥国际中心
该办公楼适合公司购买,可以各付各税!
商业立项, 房子户型非常好
挑高4.7米 可以做阁楼
房子装修风格
公司简介:诚信、专注
华亮房产自2004年成立之日起至今,一直专注于北京CBD区域及北京高端住宅房产租售,自2008 年起全面转向商业地产整合服务领域。诚信为本 专注、共赢、 我们希望通过我们的不懈努力、、专业服务让客户满意并获得超出心理预期,为客户提供完镁的商业不动产体验。
个人介绍:诚信、专注、热情
本人从事房地产经纪8年时间,主做北京成熟商圈写字楼租售业务,诚信为本,资源充足(小到100平米大到100000平米),针对个人及单位购房有丰富经验,交易过程把控,服务热情高效,让您满载而归!
房源照片
员工备案号:1008611
员工备案号:1008612
  • 小区所在城市
  • 详细地址
  • 期望租金
    元/月
  • 出租方式
  • 称呼
  • 图形验证码
  • 手机号码
    发送验证码
  • 手机验证码
  • 备注(选填)